Dos torres, un solo gesto: escultura urbana en el corazón de Miraflores.
Proyecto
Pardo 200
Ubicación
Av. José Pardo, 220 (Lima)
Cliente
Pardo 200 SAC
Año
2019
Estado
Contruido
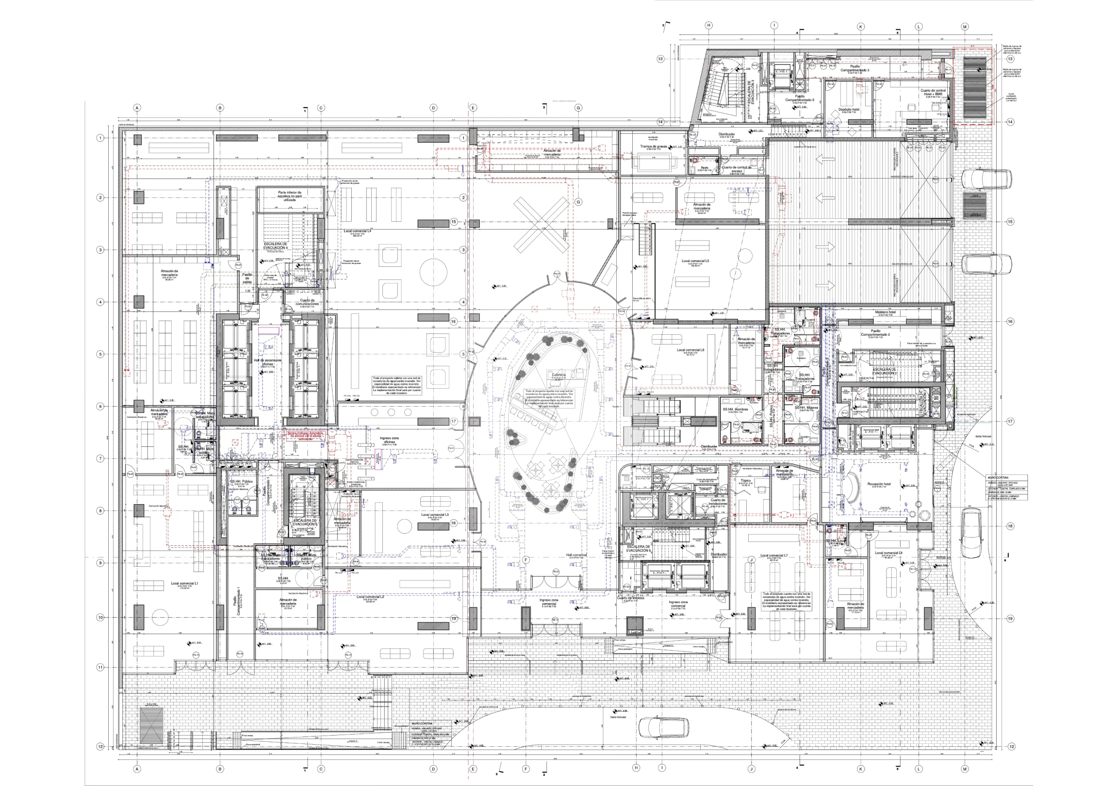
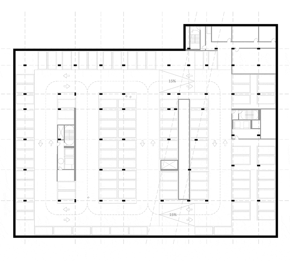
Programa
Centro comercial, Hotel y Oficinas
Colaboradores
Equipo asociado: Ojeda AS
Ingenierías: Prisma (Estructuras) FMT (Instalaciones)
Interiorismo: Pablo Baruc (centro comercial y oficinas) Capela García Arquitectos (hotel)
Dos torres, un solo gesto: escultura urbana en el corazón de Miraflores.
Hotel, oficinas y comercio se apilan con precisión sobre una base vibrante que activa la ciudad.
Una nueva silueta para Lima: 60 metros de arquitectura abierta al espacio público.