Lakun
Phorma
Calle José Díaz Oliva, Sector SUP-T.8 "Huerta Nueva", Málaga
Nuovit Homes
2021
Contruido
Residencial
Ingenierías: Duarte y Asociados para estructuras y JG INGENIEROS SA para instalaciones e instalaciones
El edificio de Huerta Nueva no busca imponerse, sino construir ciudad desde la sobriedad. Una pieza compacta y clara que cierra la manzana con precisión, abriéndose en su interior para conectar calle y parque a través de un vacío que ordena, estructura y da respiración al conjunto.
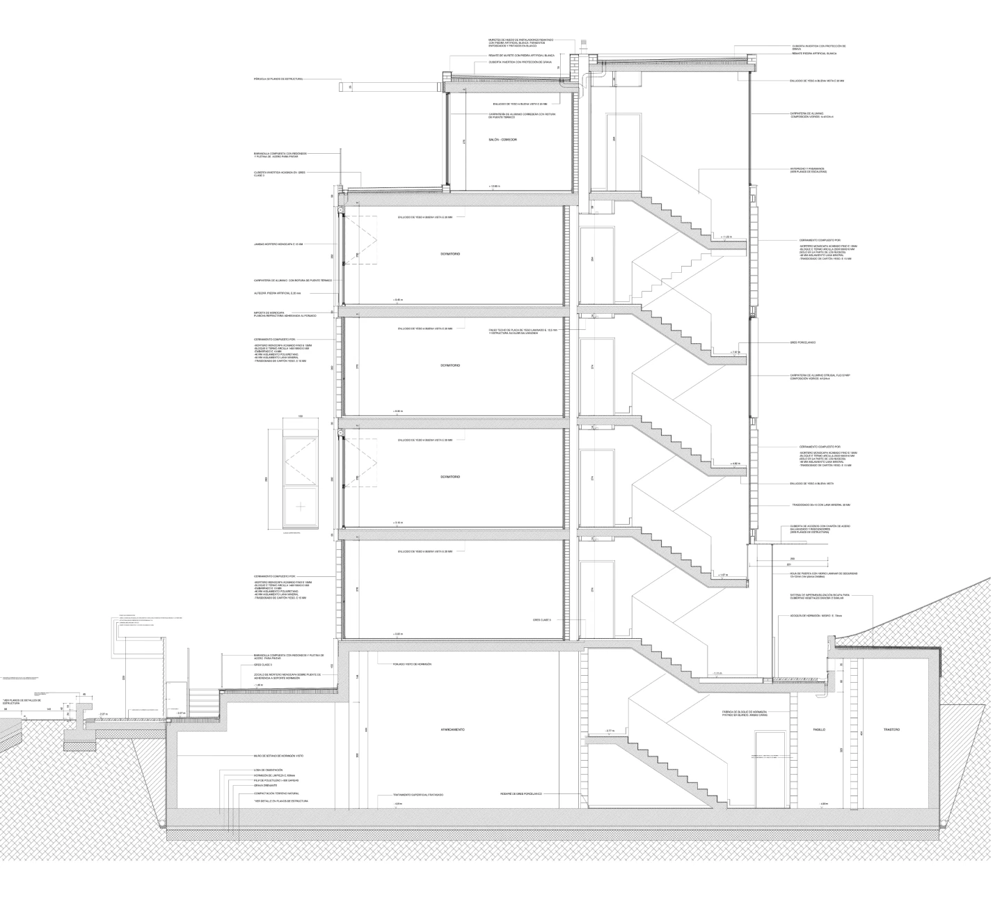
Las viviendas se organizan en doble crujía, con estancias pasantes y terrazas cubiertas que actúan como umbrales habitables entre interior y paisaje. La arquitectura se adapta al clima y al lugar, ofreciendo espacios generosos, ventilación cruzada y una relación franca con el entorno.
La fachada, resuelta en mortero pintado, encuentra en el llagueado su lenguaje: una modulación medida que ordena sin recargar. En un contexto de contención presupuestaria, el proyecto demuestra que la economía no está reñida con la dignidad, la claridad ni la calidad arquitectónica